首页 > 网上竞价 > 招标公告

福建福闽工程管理有限公司[FMCG2021030]闽侯县第八中学新校区学生宿舍不锈钢储物架采购项目网上竞价公告

出自:  发布于:2021-07-23 10:04:38

福建福闽工程管理有限公司[FMCG2021030]闽侯县第八中学新校区学生宿舍不锈钢储物架采购项目网上竞价公告

期数: FMCG2021030
采购项目名称: 闽侯县第八中学新校区学生宿舍不锈钢储物架采购项目
采购方式: 货物类
合同包总数: 1
报名起始时间: 2021-07-23 15:00:00
报名截止时间: 2021-07-28 15:00:00
竞价起始时间: 2021-07-28 15:00:00
竞价截止时间: 2021-07-28 17:00:00

包号 细项 采购项目名称 品牌 型号及设置 数量 单价 采购单位 竞价起标价 起标价合计 竞价类别 备注
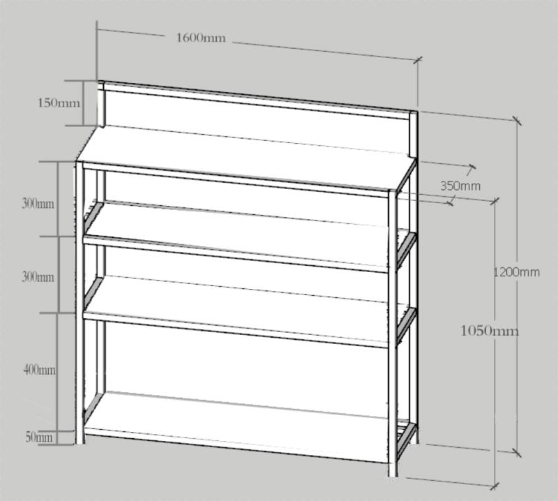
1 1 不锈钢储物架 未定品牌 1600mmX1200mmX350mm 材质不锈钢201(板面厚度0.5) 120 710.00 闽侯县第八中学 85200.00 85200.00 货物

①材质不锈钢201(板面厚度0.5)

②立柱为不锈钢圆管,横梁为层面不锈钢板折弯,层面横档为不锈钢方管

柜子整体分为4

④四角为圆管圆形,避免碰撞刮伤

合计: 85200.00


一、报名资格

凡有能力提供本竞价公告所述货物及服务的,具有法人资格的中国境内供货商或制造商均可能成为合格的供货人。

二、报名材料

1、凡有能力提供本竞价公告所述货物及服务的,具有法人资格的境内供货商或制造商均可能成为合格的竞价人;

2、竞价人须提供社会保障资金的相关材料;

3、竞价人须提供网上竞价承诺书。

4、供应商在网上竞价截止时间前一天须提交 “合格的竞价报价人”要求的所有相关材料并加盖公章,并同时提供竞价保证金凭证复印件加盖公章。未按以上要求提交报名材料的竞价人,将导致其竞价资格被拒绝。

注:(1) 法人包括企业法人、机关法人、事业单位法人和社会团体法人,提供统一社会信用代码营业执照复印件。 (2)社会保障资金的相关材料,是指提供报名截止时间前六个月任一个月的缴纳社会保险的凭据;或者提供不需要缴纳社会保障资金的相应证明文件。

三、投标规则

1、投标规则

1)采购代理机构将采购人提出的采购需求在中国政府采购网(http://www.ccgp.gov.cn)、福建福闽工程管理有限公司(http://fjfmgc.com/)发布竞价公告。网上竞价的报价时限为竞价公告截止后两个小时内,在报价时限截止前,潜在供应商可通过福建福闽工程管理有限公司竞价平台参与进行竞价,供应商首次提交的报价必须低于公告最高限价的3%(不含)以上,否则,视为无效报价。在符合采购需求且报价有效的前提下,报价最低者中标(报价相同的,以报价时间优先者中标);

2)投标次数:投标人可以在规定的投标时限内不限次数报价,直到投标截止时间为止;但所报价格需要符合第(1)条要求。

3)最终有效报价确认办法

当投标人有1个或多个可选择性的报价均符合第(1)条要求时,从投标人在采购平台提交的最后一次报价与投标人最后一次上传的投标文件中的分项报价一览表进行核对,分项报价一览表的单价计算出的总价不一致的、各分项报价的总价不一致的、总价大小写不一致的、平台的报价与报价一览表不一致的均被视为无效报价。

4)竞价人已详细审查全部竞价公告,包括修改竞价公告(如有的话)和有关附件,将自行承担因对全部竞价公告理解不正确或误解而产生的相应后果。

5)竞价人同意提供按照采购代理机构可能要求的与其竞价有关的一切数据或资料,完全理解采购代理机构不一定要接受最低的竞价或收到的任何竞价。

2、投标人报价时应当上传的材料

1)、竞价人须打印报价文件签字确认并每页加盖公章、骑缝章后扫描上传报价文件(电子 Jpg 或 pdf 或文件夹压缩包 RAR),包括但不限于以下内容:统一社会信用代码营业执照、 法人代表授权书(法人及授权人身份证)、法定代表人或竞价人代表缴纳社会保险的凭据、竞价书、竞价人声明、竞价一览表、货物说明一览表、售后服务承诺、节能产品政府采购清单相关材料(如果有的话)、3C认证证书(如果有的话)。未按上述条款要求扫描上传报价文件的竞价无效。电子报价文档具有法律效力。

(2)、投标人未按要求上传投标文件或上传的投标文件材料缺失的或文件无法正常打开的均被视为投标无效;投标数据以平台服务器接收到的文件数据为准,各投标人参与投标均被视为已知悉规则,将自行承担因对竞价公告理解不正确或误解而产生的相应后果。自行承担因投标人自身人员操作失误、计算机系统故障、插件未安装或计算机系统与平台时间不一致、断网等原因造成的一切后果。

4、中标规则

同时满足以下3个条件的投标人中标:(1)投标文件内容与采购公告及技术指标服务需求一致;(2)投标有效;(3)报价有效且报价最低者;

5、本项目若无三个(含)以上供货商参与报价的,本项目将做流标处理。

6、投标人自行承担所有参与报价的全部相关费用,应自行审查本竞价公告的内容和有关附件,

四、报价结果确认

1、报价结束后,采购代理机构以成交结果通知书等方式书面通知采购单位,成交结果公告等信息在中国政府采购网(http://www.ccgp.gov.cn)、福建福闽工程管理有限公司(http://fjfmgc.com/)上发布成交公告公告期限为本公告之日起1个工作日。

2、成交公告发布之日起 1 个工作日后,成交人可携带网上竞价项目报价文件原件一式两份至采购代理机构处领取成交通知书。竞价人携带的网上竞价项目报价文件包括但不限于以下内容:统一社会信用代码营业执照、 法人代表授权书(法人及授权人身份证)、法定代表人或竞价人代表缴纳社会保险的凭据、竞价书、竞价人声明、竞价一览表、货物说明一览表、售后服务承诺、节能产品政府采购清单相关材料(如果有的话)、3C认证证书(如果有的话)。以上材料必须 加盖报价单位公章,并由报价人的法定代表人(或其授权代表)签字。报价文件须加盖骑缝章,且装订成册。

五、投标保证金

1、投标保证金人民币3000元整,以银行转账、电汇、现金形式提交;投标保证金不是以投标人名义提交的,将导致其投标资格被拒绝。投标人的投标保证金未在投标截止时间前一天到达指定账户的将导致其投标资格被拒绝。

2、未中标的报价人,在投标结果公告发布1个工作日后即可申请无息退回,中标报价人在交货验收后,须向采购代理机构提供采购合同及验收凭证原件

六、签订合同、交货时间、交货地点

1、领取《中标通知书》后,根据要求在规定时间内签订合同,并按合同送货至指定地点安装调试完毕。

2、按投标报价文件承诺的价格及时向采购单位提供高质量的产品和服务。

3、成交供应商按照要求签订合同后提供合格货物,待货物安装结束并经采购人验收合格后5个工作日内付合同总价的95%余款于质保期满后5个工作日内付清。

七、采购代理机构联系方式

采购代理机构:福建福闽工程管理有限公司

址:福州市鼓楼区东街33号武夷中心10楼01单元

编:350001

话:13328215983

真:/

项目联系人:颜阔荣

电子信箱:3613552177@qq.com

八、投标保证金缴交银行帐号

开户行:招商银行股份有限公司福州仓山支行

开户名:福建福闽工程管理有限公司

号:591905831810202

九、附件:不锈钢储物架











公司地址: 福州市鼓楼区东街33号武夷中心10层 联系人: 王工
联系电话: 17805989915 传真: 17805989915
开户银行: 招商银行股份有限公司福州仓山支行
开户名称: 招商银行 银行帐号: 591905831810202

关于我们  |  联系方式  |  友情链接  |  后台管理  |  版权所有

技术支持: